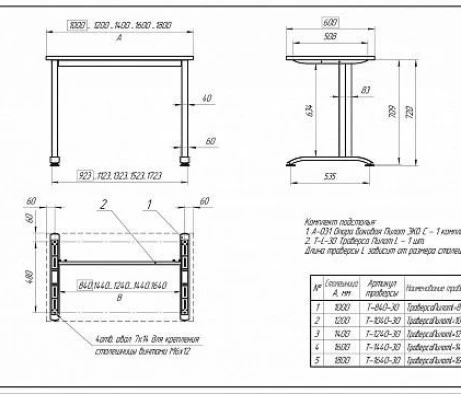
Офисная мебель Ergostol